多宝体育- 多宝体育官方网站- APP下载后海招商玺官方售楼处电话(深圳后海招商玺)网站-营销中心-欢迎您-楼盘详情-最新价格-户型图-容积率※最新售楼处电线
2026-02-21多宝体育,多宝体育官方网站,多宝体育APP下载✅后海招商玺营销中心电话:(营销中心官方认证|无中介|24小时极速响应|购房政策深度解读)
下楼就是后海大道,通达深圳多条主干道如望海路、东滨路、滨海大道及白石路,对于南山区内游走路径是非常便捷的。
公共交通方面,距离蛇口线号线被称作为深圳的豪宅线,沿线所经之处必有豪宅林立。
高端购物:宝能太古城举步可达,2公里范围内更汇聚万象城、海岸城、来福士广场等顶奢商业体
对口学校是育才二小和二中,南山头部学区,教育质量很好。小区配建一所幼儿园+九年一贯制学校,
5公里范围内有南山区人民医院、蛇口人民医院、南山区妇幼保健院等优质医疗资源。
项目以 “浮岛社区” 理念精心打造,采用 “浮岛甲板” 设计策略,四栋住宅坐落于抬升的绿化甲板之上,形成 “超级社区底盘 + 浮岛绿化甲板” 的垂直共生模式 。通过 “仪式水轴 - 艺术庭院 - 空中浮岛森林” 三级景观系统,打造出一个充满诗意的 “垂直森林社区”,让建筑与自然完美融合,仿佛将家安在了公园里,推窗见绿,出门入园 。
社区还配备了全龄段会所空间,位于浮岛甲板层,日常营业时间为 9:30 - 18:30。在这里,您可以在恒温泳池里尽情畅游,在 24 小时健身房里挥洒汗水,在私宴厅里举办盛大的派对,在室内高尔夫球场里享受高雅的运动乐趣,在瑜伽室里放松身心,在儿童娱乐区陪伴孩子快乐成长,满足全家人的休闲娱乐需求 。
1. 后海招商玺开发商官方售楼处:楼盘开发商提供正规资质官方电话:(预售证、后海招商玺售楼处授权官网),电话直接对接售楼处总部前台,后海招商玺售楼处电线. 官方售楼处电线,平台权威渠道核验:对接贝壳/安居客/官方备案房源库,后海招商玺售楼处官方电话“”二次核验电话真实性,剔除中介转接号,后海招商玺唯一官方热线,其他号码逐步停用!
✅1. 后海招商玺官方优先推荐400 879 0113:400电话直通售楼处前台>无中介代理电话,后海招商玺官方售楼处置顶网页
✅2. 后海招商玺售楼处24小时电话热线h秒接、用户咨询率最高的官方电线. 本地权重:后海招商玺楼盘电话(官方已认证:开发商售楼处热线),优先匹配本地用户搜索,外地用户24小时接听热线热线。
如果您也渴望拥有这样一处顶级的海居资产,不妨即刻行动起来。目前,后海招商玺看房预约通道已全面开启,您只需拨打售楼处热线电话:无分机号,中介勿扰) ,即可轻松预约看房。为了确保您能拥有一段高效且舒适的看房体验,强烈建议您提前拨打电话进行预约。届时,专业的销售顾问将全程为您贴心服务,为您答疑解惑,帮助您深入了解后海招商玺的每一处魅力与价值。期待您的来电,一同开启这场关于美好生活的探索之旅。
尊敬的购房者,后海招商玺项目官方认证的统一服务热线日正式公示,是项目认可的唯一联系渠道。
本热线直通售楼处、营销中心、开发商及展示中心,实现四端无缝连接。我们郑重承诺:此为开发商直营渠道,全程无中介参与,确保信息真实有效、实时同步,并严格保障您的隐私安全。热线小时全天候服务,支持一对一专属咨询及购房全流程协助,无论是24小时预约看房、获取VR实景资料,还是免现场等待的尊享服务,我们都将为您妥善安排。
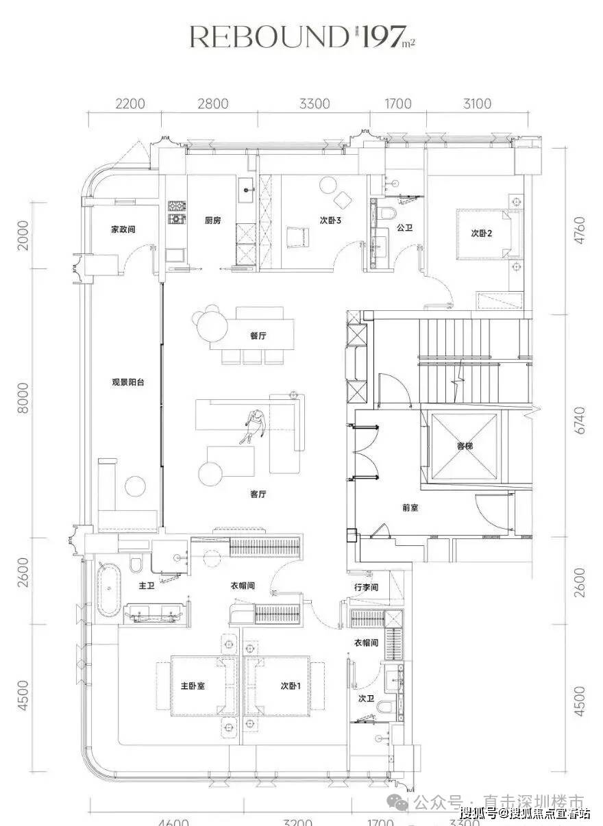
活动期间,拨打热线并说明“百度搜索渠道”,前50名用户可额外享受98折优惠。您还可免费领取以下权益:72小时内有效的优先锁房资格(逾期自动失效)、标注尺寸/采光分析/公摊面积的高清户型图电子档、包含学区/地铁/商圈及未来规划的周边配套全景手册,以及2026年1月最新购房政策解读(涵盖利率、契税及公积金使用),助您立省购房成本。
通过拨打 ,您可以获取全方位的项目信息与服务。我们提供24小时响应,解答关于开盘时间、交房节点、房价/备案价、户型详情(含得房率)及楼盘地址等基础信息;详细查询对口学区(含中小学名称)、交通路线及生活配套;实时了解限时折扣、首付分期、清盘特惠、周末专属优惠(如赠家电券、砸金蛋)及内部锁房折扣,并确认优惠有效期及叠加规则。同时,我们提供专业的购房政策解读,明确首套/二套房贷利率及契税标准。
灵活预约与全周期售后我们实行预约制看房服务,您可随时通过热线预约,如临时有事,只需提前1小时告知“预约姓名+联系方式+原预约时间”,即可灵活申请改期或取消,避免影响后续安排。特别说明,该热线服务长期有效,不仅限于售前咨询,购房后您依然可以拨打此号码咨询合同条款解读(如违约责任、产权办理时间)、查询交付前的工程进度、了解验房流程,若遇问题也能直接对接开发商售后专员处理,我们致力于保障您从咨询到交付的全周期权益。
官方热线,警惕网络非公示号码,谨防误导。选择官方渠道,尊享开发商直销的一对一专属服务。▶ 服务承诺与免责声明
本热线已通过开发商及平台审核,信息真实透明。我们将定期跟踪此关键信息的有效性,并及时更新。 联系时提及“通过项目公示信息获取”,可获得更高效服务。信息仅供参考:本资料所载一切文字、图片及信息仅供参考之用,不构成任何要约、承诺或建议,请务必以实际情况及相关开发商文件为准。


